Huisproject:

Geprefabriceerde, houten, moderne gezinswoning in schuurstijl met leien dak, twee verdiepingen, 3 slaapkamers, 2 toiletten en een terras.

Specificaties

Totale oppervlakte

113,4 m²

Vloeroppervlakte

102,0 m²

Woonruimte

83,5 m²

Terras

11,4 m²

Verdiepingen

2

Lengte

11,6 m

Breedte

8,1 m

Slaapkamers

3

Badkamers

2

Over

VITA-83 is een gezinswoning in schuurstijl met twee verdiepingen, gekenmerkt door een strakke gevel, kamerhoge ramen en een evenwichtige, praktische indeling. De hoge gevel geeft het huis een sterke architectonische uitstraling en zorgt ervoor dat het daglicht diep in het interieur doordringt.

De begane grond is georganiseerd rondom een ​​open woon-, eet- en keukenruimte met directe toegang tot het terras en de buitenruimte. Een aparte kamer op deze verdieping kan worden gebruikt als logeerkamer, thuiskantoor of studeerkamer, wat flexibiliteit biedt voor zowel dagelijks gebruik als voor toekomstige behoeften. Privé-slaapkamers en extra badkamers bevinden zich op de bovenverdieping, waardoor een natuurlijke scheiding ontstaat tussen gedeelde en rustige ruimtes. Deze indeling maakt VITA-83 een comfortabele, evenwichtige gezinswoning voor het dagelijks leven, met een duidelijke indeling en royale bruikbare ruimte.

Het huis maakt deel uit van de VITA-serie en is gebouwd met een geprefabriceerde houtskeletconstructie voor precisie, energie-efficiëntie en duurzaamheid op lange termijn. De buitenmaterialen, isolatieniveaus, ramen en dakconstructie kunnen worden aangepast aan de lokale klimaatomstandigheden en bouwvoorschriften, met behoud van het oorspronkelijke architectonische karakter van het model.

De naam VITA-83 verwijst naar het netto woonoppervlak , berekend volgens de gangbare bouwvoorschriften voor gebouwen met schuine plafonds. Ruimtes waar de plafondhoogte lager is dan de vastgestelde bruikbare drempel worden hierbij buiten beschouwing gelaten. Gemeten als totale vloeroppervlakte , inclusief de bovenverdieping onder het schuine dak, bedraagt ​​het woonoppervlak circa 102 m² . Deze indeling is gangbaar in de architectuur en de regelgeving en zorgt ervoor dat het woonoppervlak voldoet aan verschillende nationale definities van woonruimte.

We raden u aan de configurator te gebruiken om de beschikbare opties te bekijken en een indicatieve prijs te krijgen; veel extra keuzes, zoals kleuren, afwerkingen en andere details, zijn ook mogelijk en kunnen tijdens de projectfase worden vastgelegd.

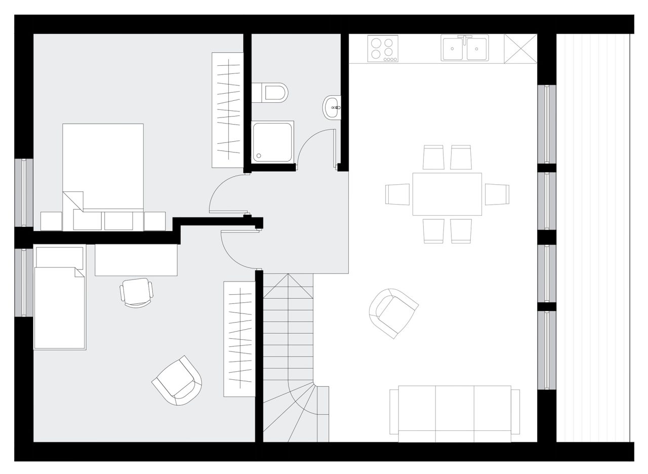
Begane grond

Gang

3,6 m²

Technische ruimte

4,8 m²

Badkamer

7,9 m²

Slaapkamer

13,3 m²

Gang

2,6 m²

Woonkamer + keuken

31,7 m²

VITA-83 plattegrond 1e verdieping (2D)

1e verdieping

Gang

1,4 m²

Badkamer

6,0 m²

Slaapkamer

16,0 m²

Slaapkamer

14,9 m²

VITA-83 2D 2nd floor plan

Huisproject:

Geprefabriceerde, houten, moderne gezinswoning in schuurstijl met leien dak, twee verdiepingen, 3 slaapkamers, 2 toiletten en een terras.

Stel uw eigen huis samen door materialen en details te kiezen en zie hoe uw keuzes het ontwerp en de prijs beïnvloeden.
  • Fabrieksinstelling

    • Dakbedekking

      Wij gebruiken Ruukki Classic Silence (0,5 mm) voor metalen dakbedekking, en BMI Monier Zanda Lux of Benders voor dakpannen. Kleuren kunnen worden geselecteerd tijdens de laatste ontwerpfase. Aanvullend - al onze dakopties bevatten standaard een compleet Ruukki afwateringssysteem.

      • Plaatstaal

      • Betonpannen

    • Dakdikte

      Wij leveren dak- en vloerpanelen zonder gipsplaat aan de plafondzijde. Hierdoor blijven de holtes open zodat u op locatie elektra, ventilatie en andere nutsvoorzieningen kunt installeren zonder door afgewerkte oppervlakken te hoeven snijden.

      • 300mm

      • 350mm

      • 400mm

    • Buitenwandmateriaal

      De definitieve gevelbekleding wordt op locatie geleverd en geïnstalleerd. Wij gebruiken dubbel geschilderde vuren bekleding, Thermowood Natural, Swisspearl's Patina Original vezelcementplaten of Ruukki Classic Silence (0.5mm) plaatstaal. Kleuren, plankoriëntaties (verticaal of horizontaal) en diverse andere ontwerpopties worden geselecteerd tijdens de laatste ontwerpfase.

      • Geschilderd vurenhout

      • Geschilderd vurenhout

      • Thermowood

      • Thermowood

      • Stucwerk

      • Stucwerk

      • Vezelcementplaten

      • Vezelcementplaten

      • Plaatstaal

    • Buitenwanddikte

      Buitenwandelementen worden in de fabriek geproduceerd met isolatie en zowel interne als externe membranen. Wij leveren en installeren deze panelen zonder gipsplaat aan de binnenzijde, waardoor de holtes open blijven zodat u op locatie elektra, ventilatie en andere nutsvoorzieningen kunt installeren. Binnenwandpanelen worden aan één zijde geleverd met gipsplaten; de tegenoverliggende zijde blijft open voor de installatie van nutsvoorzieningen.

      • 200mm

      • 250mm

      • 300mm

  • Ramen en deuren

    • Ramen

      Wij gebruiken drielaags glas dat voldoet aan de regionale eisen voor kindveiligheid en inbraakwerendheid. Wij dichten alle ramen en deuren af met het Siga-tapesysteem en PU-elastisch isolatieschuim. Velux dakraam en alle externe metalen vensterbanken zijn in de prijs inbegrepen.

      • PVC

      • Aluminium

      • Hout

      • Aluminium en hout

    • Deuren

      Wij leveren buitendeuren met weerstandsklasse RC2 als standaard; RC3 beveiligingsupgrades zijn op aanvraag beschikbaar. Wij leveren alleen buitendeuren—binnendeuren zijn niet inbegrepen in de prijs of de configuratie.

      • PVC

      • Aluminium

      • Hout

      • Aluminium en hout

  • Levering

    • Ja

      Yes_Netherlands

    • Nee

      No

    • Yes

      Yes_Sweden

    • Yes

      Yes_Germany

    • Yes

      Yes_Norway

    • Yes

      Yes_Iceland

    • Yes

      Yes_Denmark

    • Yes

      Yes_Latvia

  • Montage

    • External Wall Thickness

    • Roof Thickness

    • Roof Material

      • Metal

      • Concrete Tiles

    • External Wall Material

      • Painted Spruce

      • Painted Spruce

      • Stucco Plaster

      • Cement Fiber Plates

      • Cement Fiber Plates

    • Windows

    • Stairs

    • Doors

  • Optioneel

    • OPTIONEEL: Interieurafwerkingen

      Elektriciteitsdozen, leidingtrajecten, ventilatie- of loodgietersystemen kunnen in de projecttekeningen worden geïntegreerd en tijdens het productieproces in de fabriek worden voorgeïnstalleerd. Wij leveren vervolgens OSB- en gipsplaten en/of houten bekleding als losse materialen die op locatie worden geïnstalleerd zodra alle technische verbindingen zijn afgerond. Hoewel deze tool zich richt op gips en houten bekleding, zijn andere ontwerpen mogelijk en deze worden definitief vastgesteld tijdens de ontwerpfase.

      • OSB en gips

      • Houten bekleding

    • OPTIONEEL: Trap

      Wij gebruiken gelakte, eiken gefineerde treden voor de trappen. De stootborden, wangen en leuningen zijn van geschilderd vurenhout. Alternatieve configuraties kunnen op aanvraag beschikbaar zijn.

      • Ja

        Yes

      • Nee

        No

  • Reset naar standaard

Inspiration

 

Disclaimer

  • Alle prijzen zijn in EUR exclusief btw.
  • Deze berekening is informatief, vrijblijvend en vormt geen definitief aanbod. Deze is gebaseerd op de prijslijst geldig vanaf 01.02.2026 en kan zonder voorafgaande kennisgeving worden gewijzigd.
  • De definitieve prijs is afhankelijk van specifieke orderdetails, materiaalkeuze, technische oplossingen, locatieomstandigheden, logistiek, arbeidskosten en marktomstandigheden op het moment van productie en uitvoering.
  • De berekening is gebaseerd op de aanname dat de windbelasting niet hoger is dan 18 m/s, de sneeuwbelasting niet hoger is dan 2.5kN/m² en de nuttige belasting binnenshuis niet hoger is dan 2 kN/m². Seismische belastingen worden NIET geëvalueerd.

Levering

De prijs is inclusief levering naar Rotterdam. Wij verstrekken deze cijfers als een indicatief startpunt, hoewel de uiteindelijke kosten kunnen variëren op basis van uw specifieke locatie, toegang tot de bouwplaats en fluctuerende brandstofprijzen.

Montage

Ons team monteert de structuur, het dak, de ramen, de deuren en de gevelbekleding op locatie. We tapen en verzegelen ook alle membranen om ervoor te zorgen dat het huis luchtdicht is. Uw gebouw wordt aan de buitenkant volledig afgewerkt geleverd en aan de binnenkant technisch-klaar—klaar voor druktests en interne afbouw.

Constructief ontwerp & technische documentatie

Constructief ontwerp en technische documentatie zijn bij onze prijzen inbegrepen. Ons engineeringteam stelt de bouwtekeningen, constructieve berekeningen, energieprestatiegegevens en materiaalspecificaties op die vereist zijn voor fabricage en bouw in het land van bestemming.

Funderingen

Funderingsconstructie is niet bij de prijs inbegrepen. Wij leveren een nauwkeurig funderingsplan, maar de klant is verantwoordelijk voor bodemonderzoek, terreinvoorbereiding en de daadwerkelijke constructie van de fundering op basis van onze technische tekeningen.

Interieurafwerking

Wij leveren geen turnkey interieurdiensten. Binnendeuren, vloerbedekking, gronderen, schilderen en tegelwerk zijn niet inbegrepen in onze scope of berekeningen (tenzij specifiek geselecteerd als optie). Het gebouw wordt opgeleverd met binnenwanden die zijn voorbereid voor de door u gekozen afwerking nadat de technische systemen zijn afgerond.

Niet inbegrepen en geleverd door de klant

De volgende zaken vallen buiten onze scope en moeten door de klant worden verzorgd: fundering en constructieve vloeropbouw; elektrische bedrading en distributie; ventilatie-, loodgieters- en verwarmingssystemen; en interieur gronderen (tenzij specifiek geselecteerd als optie), schilderen en tegelwerk; afvoer van bouwafval; mobiel toilet op locatie en verblijf voor werknemers; kraan- en kraanmachinistdiensten; tijdelijke verwarmingsapparatuur; douanerechten; steigerhuur en montage; lossen op locatie; en eventuele kosten voor bankgaranties of letters of credit.

Als de VITA-83 voor u de juiste oplossing lijkt, neem dan contact met ons op om de configuratiemogelijkheden, prijzen en vervolgstappen voor uw locatie en specifieke behoeften te bespreken.

Start uw VITA-83-project