Huisproject:

Geprefabriceerde, moderne gezinswoning met plat dak en houten frame, één verdieping, met 2 slaapkamers, 1 toilet en een terras.

Specificaties

Totale oppervlakte

117,2 m²

Woonruimte

81,0 m²

Terras

19,5 m²

Verdiepingen

1

Lengte

11,8 m

Breedte

9,9 m

Slaapkamers

2

Badkamers

1

Over

BONA-81 is een gelijkvloerse gezinswoning met een plat dak, gekenmerkt door strakke lijnen, goed geproportioneerde volumes en een heldere, functionele indeling. Het ontwerp zet de minimalistische architectuurstijl van de BONA-serie voort en biedt tegelijkertijd extra binnenruimte voor meer comfort en flexibiliteit. De eenvoudige geometrie en het ingetogen design zorgen ervoor dat de woning gemakkelijk in diverse omgevingen integreert.

Het interieur is georganiseerd rondom een ​​royale open woon-, eet- en keukenruimte die het hart van het dagelijks leven vormt. Grotere kamers en een betere doorstroming maken de indeling geschikt voor gezinnen die waarde hechten aan openheid en comfort zonder onnodige complexiteit. De slaapkamers en badkamers zijn zo ingericht dat ze privacy bieden en praktisch in gebruik zijn, terwijl grote raamopeningen een sterke verbinding creëren met het terras en de buitenruimte. De gelijkvloerse indeling zorgt voor een gemakkelijke doorstroming in het hele huis en ondersteunt de bruikbaarheid op lange termijn.

BONA-81 is gebouwd met behulp van geprefabriceerde houtskeletbouw, wat zorgt voor een nauwkeurige productie, constante kwaliteit en betrouwbare energieprestaties. Wand-, dak- en vloerelementen worden onder gecontroleerde omstandigheden in de fabriek geproduceerd, waardoor isolatieniveaus, gevelbekleding, ramen en dakoplossingen kunnen worden aangepast aan de lokale klimaatomstandigheden en nationale bouwvoorschriften, met behoud van het strakke architectonische karakter van het model.

De naam BONA-81 verwijst naar het netto woonoppervlak van de woning. De indeling maakt efficiënt gebruik van de ruimte en biedt een evenwichtige plattegrond die comfortabel gezinsleven mogelijk maakt. Zoals bij alle BONA-modellen kunnen de technische specificaties worden aangepast aan de locatie, het gebruik en de projectvereisten.

BONA-81 biedt een uitgebalanceerde combinatie van minimalistisch design en extra leefruimte in een compacte, gelijkvloerse woning. We raden u aan de configurator te gebruiken om de beschikbare opties te bekijken en een indicatieve prijs te krijgen. Veel extra keuzes – zoals kleuren, afwerkingen en andere technische details – kunnen in de projectfase samen worden vastgelegd.

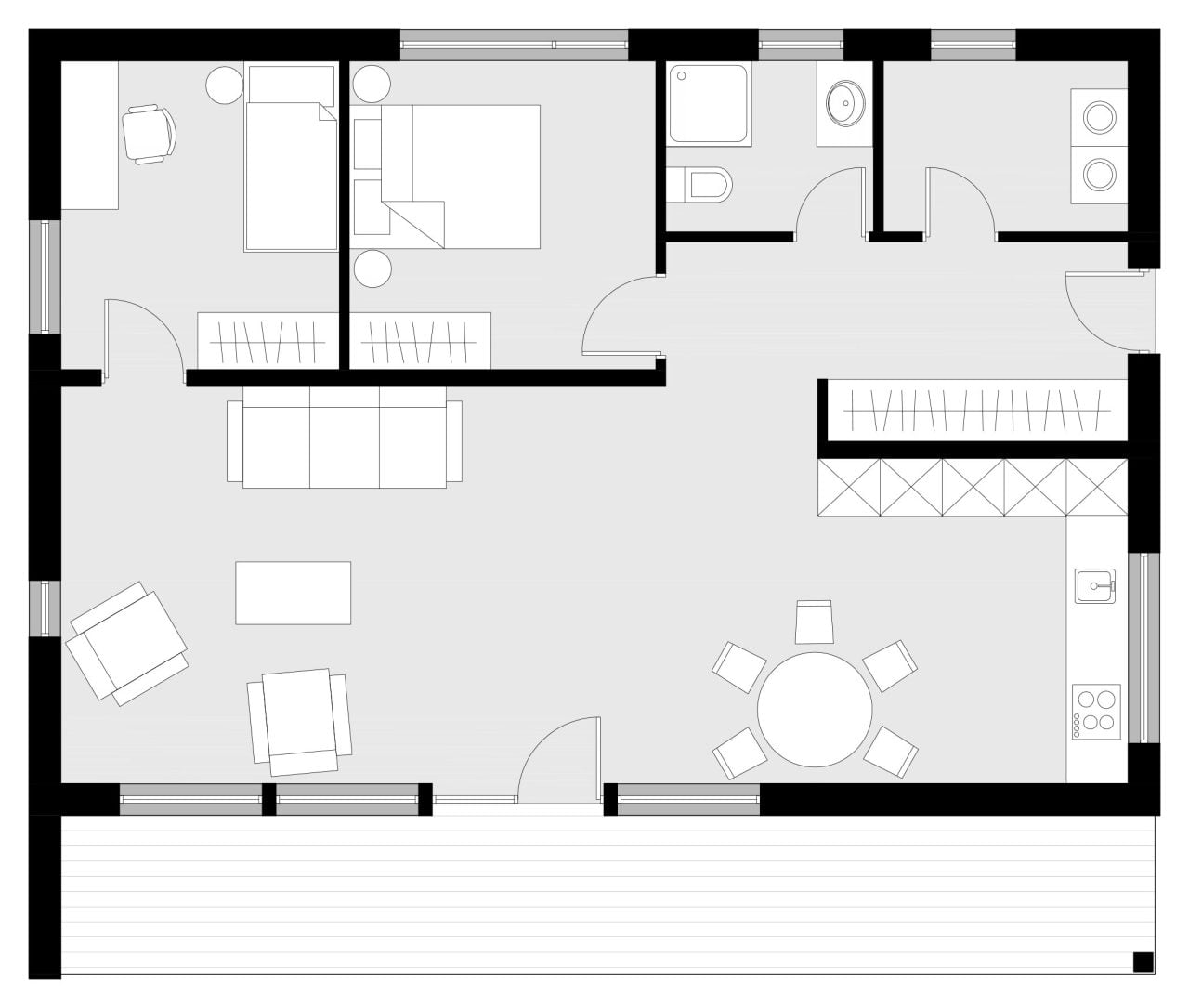
Begane grond

Gang

7,5 m²

Technische ruimte

4,4 m²

Badkamer

3,9 m²

Slaapkamer

10,4 m²

Slaapkamer

9,7 m²

Woonkamer + keuken

45,1 m²

BONA-81 2D floor plan

Huisproject:

Geprefabriceerde, moderne gezinswoning met plat dak en houten frame, één verdieping, met 2 slaapkamers, 1 toilet en een terras.

Stel uw eigen huis samen door materialen en details te kiezen en zie hoe uw keuzes het ontwerp en de prijs beïnvloeden.
  • Fabrieksinstelling

    • Dakmateriaal

      Wij gebruiken BMI Icopal voor bitumen dakbedekking. Zwarte en grijze kleuren zijn beschikbaar en kunnen worden geselecteerd tijdens de laatste ontwerpfase. Aanvullend - al onze dakopties bevatten standaard een compleet Ruukki afwateringssysteem.

      • Bitumen

    • Dakbedekking

      Wij leveren dak- en vloerpanelen zonder gipsplaat aan de plafondzijde. Hierdoor blijven de holtes open zodat u op locatie elektra, ventilatie en andere nutsvoorzieningen kunt installeren zonder door afgewerkte oppervlakken te hoeven snijden.

      • 300mm

      • 350mm

      • 400mm

    • Buitenwandmateriaal

      De definitieve gevelbekleding wordt op locatie geleverd en geïnstalleerd. Wij gebruiken dubbel geschilderde vuren bekleding, Thermowood Natural of Swisspearl's Patina Original vezelcementplaten. Kleuren, plankoriëntaties (verticaal of horizontaal) en diverse andere ontwerpopties worden geselecteerd tijdens de laatste ontwerpfase.

      • Geschilderd vurenhout

      • Thermowood

      • Stucwerk

      • Vezelcementplaten

    • Buitenwanddikte

      Buitenwandelementen worden in de fabriek geproduceerd met isolatie en zowel interne als externe membranen. Wij leveren en installeren deze panelen zonder gipsplaat aan de binnenzijde, waardoor de holtes open blijven zodat u op locatie elektra, ventilatie en andere nutsvoorzieningen kunt installeren. Binnenwandpanelen worden aan één zijde geleverd met gipsplaten; de tegenoverliggende zijde blijft open voor de installatie van nutsvoorzieningen.

      • 200mm

      • 250mm

      • 300mm

  • Ramen en deuren

    • Ramen

      Wij gebruiken drielaags glas dat voldoet aan de regionale eisen voor kindveiligheid en inbraakwerendheid. Wij dichten alle ramen en deuren af met het Siga-tapesysteem en PU-elastisch isolatieschuim. Externe metalen vensterbanken zijn in de prijs inbegrepen.

      • PVC

      • Aluminium

      • Hout

      • Aluminium en hout

    • Deuren

      Wij leveren buitendeuren met weerstandsklasse RC2 als standaard; RC3 beveiligingsupgrades zijn op aanvraag beschikbaar. Wij leveren alleen buitendeuren—binnendeuren zijn niet inbegrepen in de prijs of de configuratie.

      • PVC

      • Aluminium

      • Hout

      • Aluminium en hout

  • Levering

    • Ja

      Yes_Netherlands

    • Nee

      No

    • Yes

      Yes_Sweden

    • Yes

      Yes_Germany

    • Yes

      Yes_Norway

    • Yes

      Yes_Iceland

    • Yes

      Yes_Denmark

    • Yes

      Yes_Latvia

  • Montage

    • External Wall Thickness

    • Roof Thickness

    • Roof Material

      • Bitumens

    • External Wall Material

      • Painted Spruce

      • Painted Spruce

      • Stucco Plaster

      • Cement Fiber Plates

    • Windows

    • Stairs

  • Optioneel

    • OPTIONEEL: Interieurafwerkingen

      Elektriciteitsdozen, leidingtrajecten, ventilatie- of loodgietersystemen kunnen in de projecttekeningen worden geïntegreerd en tijdens het productieproces in de fabriek worden voorgeïnstalleerd. Wij leveren vervolgens OSB- en gipsplaten en/of houten bekleding als losse materialen die op locatie worden geïnstalleerd zodra alle technische verbindingen zijn afgerond. Hoewel deze tool zich richt op gips en houten bekleding, zijn andere ontwerpen mogelijk en deze worden definitief vastgesteld tijdens de ontwerpfase.

      • OSB en gips

      • Houten bekleding

  • Reset naar standaard

Inspiration

 

Disclaimer

  • Alle prijzen zijn in EUR exclusief btw.
  • Deze berekening is informatief, vrijblijvend en vormt geen definitief aanbod. Deze is gebaseerd op de prijslijst geldig vanaf 01.02.2026 en kan zonder voorafgaande kennisgeving worden gewijzigd.
  • De definitieve prijs is afhankelijk van specifieke orderdetails, materiaalkeuze, technische oplossingen, locatieomstandigheden, logistiek, arbeidskosten en marktomstandigheden op het moment van productie en uitvoering.
  • De berekening is gebaseerd op de aanname dat de windbelasting niet hoger is dan 18 m/s, de sneeuwbelasting niet hoger is dan 2.5kN/m² en de nuttige belasting binnenshuis niet hoger is dan 2 kN/m². Seismische belastingen worden NIET geëvalueerd.

Levering

De prijs is inclusief levering naar Rotterdam. Wij verstrekken deze cijfers als een indicatief startpunt, hoewel de uiteindelijke kosten kunnen variëren op basis van uw specifieke locatie, toegang tot de bouwplaats en fluctuerende brandstofprijzen.

Montage

Ons team monteert de structuur, het dak, de ramen, de deuren en de gevelbekleding op locatie. We tapen en verzegelen ook alle membranen om ervoor te zorgen dat het huis luchtdicht is. Uw gebouw wordt aan de buitenkant volledig afgewerkt geleverd en aan de binnenkant technisch-klaar—klaar voor druktests en interne afbouw.

Constructief ontwerp & technische documentatie

Constructief ontwerp en technische documentatie zijn bij onze prijzen inbegrepen. Ons engineeringteam stelt de bouwtekeningen, constructieve berekeningen, energieprestatiegegevens en materiaalspecificaties op die vereist zijn voor fabricage en bouw in het land van bestemming.

Funderingen

Funderingsconstructie is niet bij de prijs inbegrepen. Wij leveren een nauwkeurig funderingsplan, maar de klant is verantwoordelijk voor bodemonderzoek, terreinvoorbereiding en de daadwerkelijke constructie van de fundering op basis van onze technische tekeningen.

Interieurafwerking

Wij leveren geen turnkey interieurdiensten. Binnendeuren, vloerbedekking, gronderen, schilderen en tegelwerk zijn niet inbegrepen in onze scope of berekeningen (tenzij specifiek geselecteerd als optie). Het gebouw wordt opgeleverd met binnenwanden die zijn voorbereid voor de door u gekozen afwerking nadat de technische systemen zijn afgerond.

Niet inbegrepen en geleverd door de klant

De volgende zaken vallen buiten onze scope en moeten door de klant worden verzorgd: fundering en constructieve vloeropbouw; elektrische bedrading en distributie; ventilatie-, loodgieters- en verwarmingssystemen; en interieur gronderen (tenzij specifiek geselecteerd als optie), schilderen en tegelwerk; afvoer van bouwafval; mobiel toilet op locatie en verblijf voor werknemers; kraan- en kraanmachinistdiensten; tijdelijke verwarmingsapparatuur; douanerechten; steigerhuur en montage; lossen op locatie; en eventuele kosten voor bankgaranties of letters of credit.

Als BONA-81 voor u de juiste oplossing lijkt, neem dan contact met ons op om de configuratiemogelijkheden, prijzen en vervolgstappen voor uw locatie en specifieke eisen te bespreken.

Start uw BONA-81-project