Mājas projekts:

Saliekama koka karkasa vienstāva moderna ģimenes māja ar plakanu jumtu, 2 guļamistabām, 1 tualeti un terasi.

Specifikācijas

Kopējā platība

91,2 m²

Dzīvojamā zona

74,1 m²

Terase

17,1 m²

Stāvi

1

Garums

11,7 m

Platums

9,2 m

Guļamistabas

2

Vannas istabas

1

Par mums

BONA-74 ir vienstāva ģimenes māja ar plakanu jumtu, ko raksturo tīras līnijas, līdzsvarotas proporcijas un praktisks, atvērts plānojums. Tā seko BONA sērijas minimālistiskajai arhitektūras valodai, vienlaikus piedāvājot lielāku iekšējo telpu un paaugstinātu elastību salīdzinājumā ar mazāko modeli. Dizains ir apzināti vienkāršs, koncentrējoties uz skaidrību, lietojamību un mūsdienīgu dzīvesveidu.

Interjers ir centrēts ap atvērtu dzīvojamo, ēdamistabas un virtuves zonu, kas ir bagāta ar dabisko apgaismojumu un ar tiešu piekļuvi terasei. Lielāka grīdas platība nodrošina plašākas koplietošanas zonas un uzlabotas telpu proporcijas, nodrošinot ērtu ikdienas dzīvi. Guļamistabas un vannas istabas ir iekārtotas, lai nodrošinātu privātumu un efektīvu pārvietošanos, padarot plānojumu piemērotu pāriem, mazām ģimenēm vai ilgtermiņa dzīvošanai. Tāpat kā visiem BONA modeļiem, vienlīmeņa plānojums nodrošina ērtu pārvietošanos visā mājā un spēcīgu saikni starp iekštelpu un āra telpām.

BONA-74 ir būvēta, izmantojot saliekamās koka karkasa konstrukcijas, kas nodrošina precīzu izgatavošanu, nemainīgu kvalitāti un uzticamu energoefektivitāti. Sienu, jumta un grīdas elementi tiek ražoti kontrolētos rūpnīcas apstākļos. Izolācijas līmeņus, ārējo apšuvumu, logus un jumta risinājumus var pielāgot vietējiem klimatiskajiem apstākļiem un valsts būvnormatīviem, vienlaikus saglabājot mājas tīro un moderno raksturu.

Nosaukums BONA-74 attiecas uz mājas dzīvojamo platību. Plānojums ir veidots tā, lai maksimāli palielinātu izmantojamo platību, vienlaikus saglabājot efektīvu un līdzsvarotu noslodzi. Tāpat kā citiem BONA sērijas modeļiem, tehniskās specifikācijas var pielāgot atkarībā no atrašanās vietas, lietošanas veida un projekta prasībām.

BONA-74 piedāvā pārdomātu līdzsvaru starp kompaktu dzīvošanu un papildu komfortu minimālistiskas arhitektūras ietvaros. Mēs iesakām izmantot konfiguratoru, lai izpētītu pieejamās iespējas un iegūtu aptuvenu cenu. Daudzas papildu iespējas, tostarp krāsas, apdares un citas tehniskās detaļas, var tikt definētas kopīgi projekta stadijā.

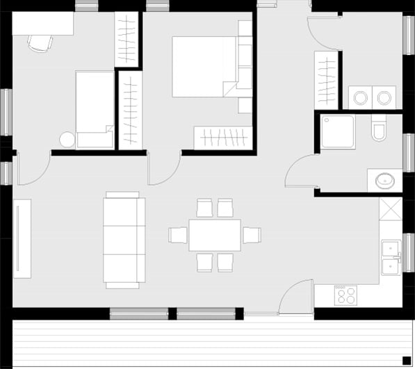
1. stāvs

Variants 1/2

Priekšnams

6,9 m²

Tehniskā telpa

2,0 m²

Vannas istaba

3,5 m²

Guļamistaba

10,3 m²

Guļamistaba

10,0 m²

Dzīvojamā istaba + virtuve

41,4 m²

BONA-74 2D floor plan - ver A

Priekšnams

7,7 m²

Tehniskā telpa

3,5 m²

Vannas istaba

3,7 m²

Guļamistaba

10,7 m²

Guļamistaba

9,6 m²

Dzīvojamā istaba + virtuve

38,9 m²

BONA-74 2D floor plan - ver B

Mājas projekts:

Saliekama koka karkasa vienstāva moderna ģimenes māja ar plakanu jumtu, 2 guļamistabām, 1 tualeti un terasi.

Konfigurējiet savu māju, izvēloties materiālus un detaļas, un redziet, kā jūsu izvēles ietekmē dizainu un cenu.
  • Rūpnīcas komplekts

    • Jumta segums

      Bitumena jumtiem izmantojam BMI Icopal segumu melnā vai pelēkā krāsā. Standarta komplektācijā iekļauta pilna Ruukki noteksistēma.

      • Bitumens

    • Jumta paneļi

      Mēs piegādājam jumta un pārseguma paneļus bez griestu puses ģipškartona. Tas atstāj konstrukcijas dobumus atvērtus, lai objektā varētu uzstādīt elektroinstalāciju, ventilāciju un citas inženierkomunikācijas, nebojājot pabeigtās virsmas.

      • 300mm

      • 350mm

      • 400mm

    • Fasādes apdare

      Fasādes apdare tiek piegādāta un uzstādīta objektā. Mēs izmantojam divreiz krāsotus egles dēļus, Thermowood Natural, Apmetumu Stucco vai Swisspearl Patina Original šķiedrcementa plāksnes. Krāsas, dēļu virzienu (vertikāli vai horizontāli) un citus dizaina risinājumus iespējams izvēlēties noslēdzošajā projektēšanas posmā.

      • Krāsota egle

      • Termokoks

      • Apmetums

      • Šķiedrcementa plāksnes

    • Ārsienu paneļi

      Ārsienu elementi tiek ražoti rūpnīcas apstākļos, komplektācijā iekļaujot siltumizolāciju, kā arī iekšējās un ārējās izolācijas membrānas. Paneļi tiek piegādāti un uzstādīti bez iekšpuses ģipškartona, atstājot dobumus atvērtus elektroinstalācijas, ventilācijas un citu inženierkomunikāciju izbūvei objektā. Iekšsienu paneļi tiek piegādāti ar ģipškartonu vienā pusē; pretējā puse paliek atvērta komunikāciju uzstādīšanai.

      • 200mm

      • 250mm

      • 300mm

  • Logi un ārdurvis

    • Logi

      Mēs izmantojam trīskāršā stiklojuma logus, kas atbilst reģionālajām prasībām bērnu drošībai un aizsardzībai pret ielaušanos. Cenā ir iekļautas ārējās metāla palodzes.

      • PVC

      • Alumīnijs

      • Koks

      • Alumīnijs ar koku

    • Ārdurvis

      Standarta komplektācijā nodrošinām ārdurvis ar RC2 drošības klasi; RC3 drošības uzlabojumi pieejami pēc pieprasījuma. Mēs nodrošinām tikai ārdurvis — iekšdurvis nav iekļautas cenā vai konfigurācijā.

      • PVC

      • Alumīnijs

      • Koks

      • Alumīnijs ar koku

  • Piegāde

    • Ja

      Yes_Latvia

    • Ne

      No

    • Yes

      Yes_Sweden

    • Yes

      Yes_Germany

    • Yes

      Yes_Netherlands

    • Yes

      Yes_Norway

    • Yes

      Yes_Iceland

    • Yes

      Yes_Denmark

  • Montāža

    • External Wall Thickness

    • Roof Thickness

    • Roof Material

      • Bitumens

    • External Wall Material

      • Painted Spruce

      • Painted Spruce

      • Stucco Plaster

      • Cement Fiber Plates

    • Windows

    • Stairs

  • Papildaprīkojums

    • PAPILDU: Iekšējā apdare

      Elektroinstalācijas kārbas, gofras, ventilācijas vai santehnikas sistēmas var tikt integrētas projekta rasējumos un iepriekš uzstādītas rūpnīcā ražošanas procesā. OSB un ģipškartona plāksnes un/vai koka apdare tiek piegādātas kā nepiestiprināti materiāli uzstādīšanai objektā pēc visu inženiersistēmu pabeigšanas. Lai gan konfigurators fokusējas uz ģipškartonu un koka apdari, iespējami arī citi risinājumi, kas tiek saskaņoti projektēšanas posmā.

      • OSB un ģipškartons

      • Apdares dēļi

  • Atiestatīt uz noklusējumu

Inspiration

 

Atruna

  • Visas cenas norādītas EUR bez PVN.
  • Šim aprēķinam ir informatīvs raksturs, tas nav saistošs un nav uzskatāms par galīgu piedāvājumu. Tas balstīts uz cenrādi, kas ir spēkā no 01.02.2026., un var tikt mainīts bez iepriekšēja brīdinājuma.
  • Galīgā cena ir atkarīga no pasūtījuma specifikas, izvēlētajiem materiāliem, tehniskajiem risinājumiem, objekta apstākļiem, loģistikas, darba izmaksām un tirgus apstākļiem ražošanas un izpildes brīdī.
  • Aprēķinu pamatā ir pieņēmums, ka vēja slodze nepārsniedz 18 m/s, sniega slodze nepārsniedz 2.5kN/m², lietderīgā slodze telpās nepārsniedz 2 kN/m². Seismiskās slodzes NETIEK vērtētas.

Piegāde

Norādītās izmaksas ir indikatīvas; galīgās izmaksas var atšķirties atkarībā no objekta atrašanās vietas, piekļuves apstākļiem un degvielas cenu svārstībām.

Montāža

Mūsu komanda objektā samontē konstrukciju, jumtu, logus, durvis un fasādes apdari. Tiek nolīmētas un noblīvētas visas membrānas, nodrošinot ēkas hermētiskumu. Ēka tiek nodota pilnībā pabeigta no ārpuses un tehniski sagatavota no iekšpuses — gatava spiediena testam un turpmākai iekšējai apdarei.

Būvkonstrukciju projektēšana & tehniskā dokumentācija

Būvkonstrukciju projektēšana un tehniskā dokumentācija ir iekļauta mūsu cenā. Mūsu inženieru komanda sagatavo būvkonstrukciju rasējumus, statiskos aprēķinus, energoefektivitātes datus un materiālu specifikācijas, kas nepieciešamas ražošanai un būvniecībai mērķa valstī.

Pamati

Pamatu izbūve nav iekļauta cenā. Mēs nodrošinām precīzu pamatu plānu, taču klients ir atbildīgs par grunts izpēti, objekta sagatavošanu un pamatu izbūvi saskaņā ar mūsu tehniskajiem rasējumiem.

Iekšējā apdare

Mēs nenodrošinām pilna cikla (turnkey) iekšējās apdares pakalpojumus. Iekšdurvis, grīdas segumi, gruntēšana, krāsošana un flīzēšana nav iekļauti mūsu darbu apjomā vai aprēķinos (ja vien tas nav īpaši izvēlēts kā papildaprīkojums). Ēka tiek nodota ar iekšsienām, kas sagatavotas jūsu izvēlētajai apdarei pēc inženiersistēmu pabeigšanas.

Nav iekļauts un nodrošina klients

Šie darbi un izmaksas ir ārpus mūsu darba apjoma un jānodrošina klientam: pamatu un nesošo grīdu izbūve; elektroinstalācija un sadale; ventilācijas, santehnikas un apkures sistēmas; iekšējo virsmu gruntēšana (ja vien tā nav izvēlēta kā papildaprīkojums), krāsošana un flīzēšana; būvgružu izvešana; mobilā tualete objektā un strādnieku izmitināšana; celtņa un operatora pakalpojumi; pagaidu apkure; muitas nodevas; sastatņu noma un montāža; izkraušana objektā; kā arī bankas garantijas vai akreditīva noformēšanas izmaksas.

Ja BONA-74 šķiet Jums piemērots, sazinieties ar mums, lai pārrunātu konfigurācijas iespējas, cenas un nākamos soļus Jūsu vietnei un prasībām.

Sāciet savu BONA-74 projektu